- €57,000/7 Days
Overview
- Chalet
- 6
- 6
- 411 Sqm
Description
Chalet Ascension is a welcoming ski in ski out retreat in Courchevel Moriond, offering 411 square metres of warm Alpine living for up to fourteen guests. With soothing wellness spaces and direct access to the slopes, it delivers an effortless and comfortable base for families and friends seeking a serene Courchevel escape.
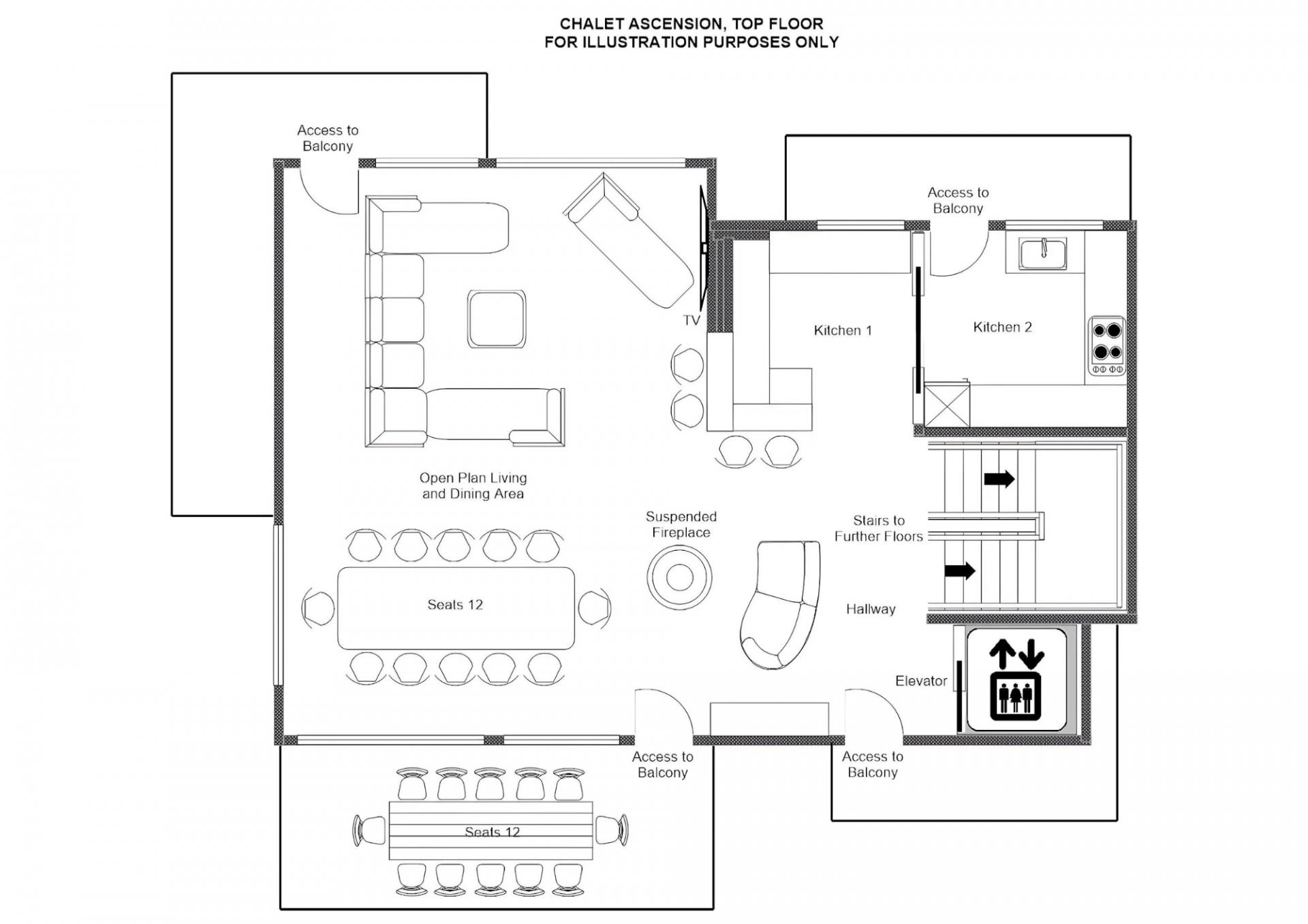
The main living area presents a blend of contemporary elegance and mountain character. Vaulted ceilings clad in timber, together with a suspended wood burning fireplace, create a cosy focal point. A generous corner sofa forms the lounge, while the dining area features a long table designed to bring everyone together. Floor to ceiling windows open the space to views across Courchevel Moriond and the surrounding pistes. The adjoining kitchen is fully equipped for relaxed evenings at home, complemented by a breakfast bar for casual dining. An expansive balcony offers a peaceful outdoor space to enjoy fresh mountain air and watch skiers glide past at the end of the day.
A selection of wellness facilities enhances the chalet experience. The indoor swimming pool offers family friendly enjoyment, while the sauna, steam room and massage space invite deeper relaxation after time on the slopes. For entertainment, the chalet includes table football and a dedicated cinema room perfect for quiet evenings in.
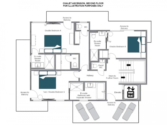
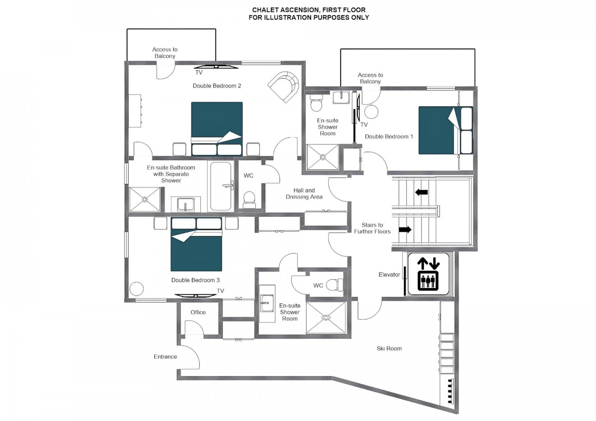
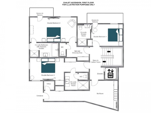
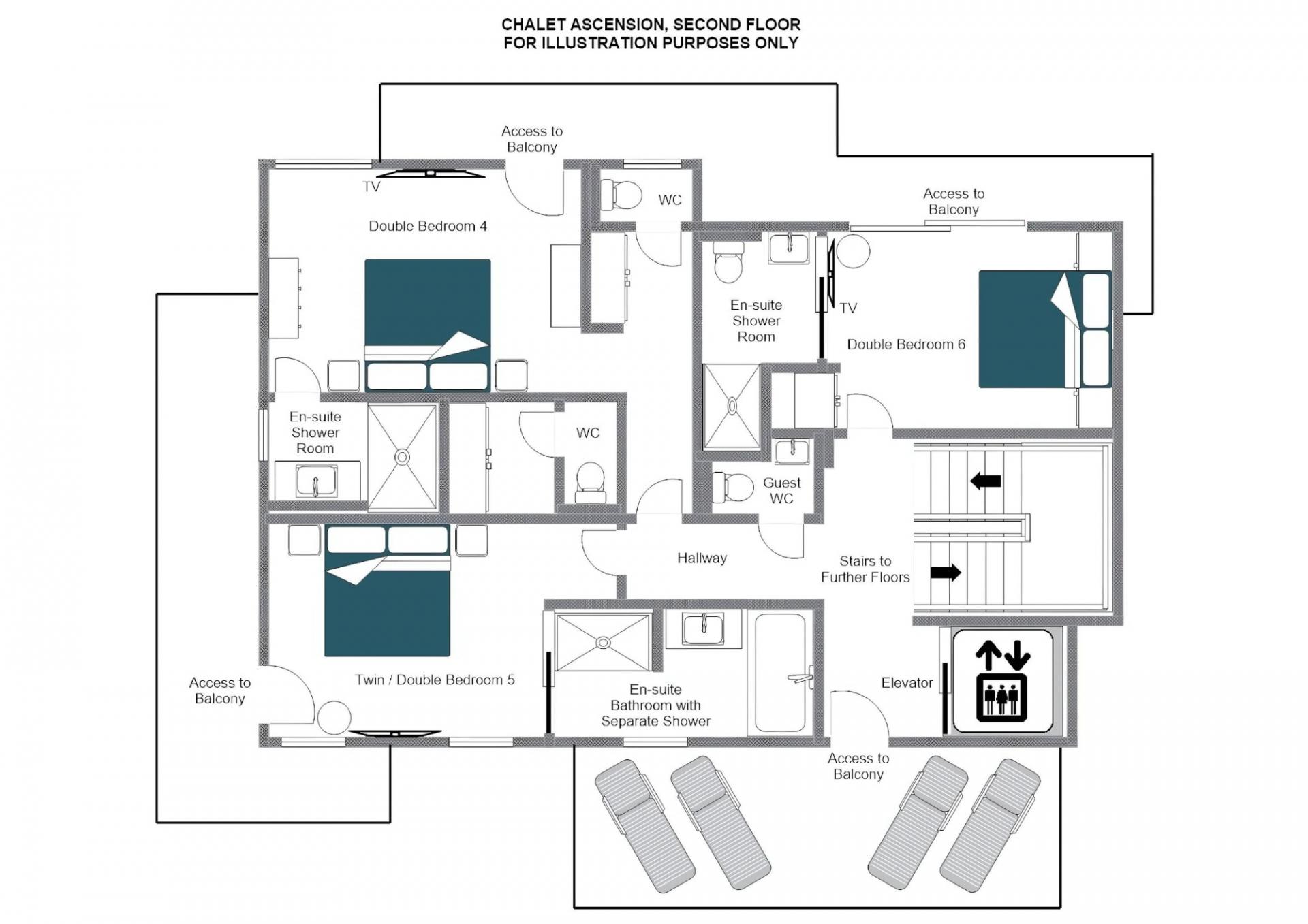
Chalet Ascension features six double bedrooms across its floors, each framed with traditional Alpine styling and large windows that fill the spaces with natural light. All bedrooms include en-suite bath or shower rooms, and several benefit from private balconies. A set of bunk beds for two children is positioned within the cinema room, making this an excellent choice for families seeking additional flexibility.
Practical features include three covered parking spaces plus an exterior space, a ski locker, a laundry room and an elevator connecting the chalet’s floors.
Chalet Ascension brings together comforting interiors, slope side convenience and thoughtful amenities for a relaxed and memorable stay in Courchevel Moriond.
Caution: All bookings at The Chalet Luxe require full advance payment and a minimum stay of one week. Please review our payment and cancellation policies before confirming your reservation.

Catered Prices Include
- Exclusive use of the chalet
- Pre-arrival & in-resort concierge service
- Daily cooked and continental breakfast served by your breakfast cook and host
- Freshly baked afternoon tea (6 days)
- Pre-dinner canapés served with champagne (6 evenings)
- A professional chef and host serving a 4-course dinner (6 evenings)
- Early children’s supper (6 evenings)
- Daily housekeeping service
- Mid-week towel change
- Evening turn down service (6 evenings)
- A selection of complimentary house wines with dinner, beers and soft drinks
- Complimentary drinks tray (3 bottles of house spirits)
- In-chalet ski and boot delivery service
- Bed linen & towels
- Bathrobes & slippers
- Toiletries
- End of stay cleaning
Additional Services (Extra Charges Apply)
- Dedicated in-resort 4 x 4 driving service from 8:00am – 1:00am. (provided in a VW Caravelle or similar)
- Private transfers to and from resort
- Lift passes and lift pass delivery service
- Ski equipment hire
- Childcare
- In-chalet massage and hairdressing
- Private ski guides, heli-skiing and ski lessons
- Non-skiing activities
- Pre-arrival shopping service
- Helicopter transfer
- Party planning
- Corporate event planning
- Please enquire about any other specific service requests
Address
-
City: Courchevel Moriond
-
Country: France
Details
Updated on November 26, 2025 at 8:18 am-
Property ID CL-0278
-
Property Size 411 Sqm
-
Sleeps 12-14
Floor Plans
- 3
- 3
